Pelletsilo FLACHBODEN inkl. Gestell
Herstellerinformationen
Name: A.B.S. Silo- und Förderanlagen GmbH
Adresse: Industriepark 100, 74706 Osterburken
E-Mail: info@abs-silos.de
Webseite: https://abs-silos.de/
Europäischer Hersteller: Ja
Lieferzeit Deutschland
Paket 1 - 3 Tage
Spedition 3 - 5 Tage
Lieferzeit Europa
Paket 3 - 5 Tage
Spedition 5 - 7 Tage
Garantiert sicherer Checkout

Pelletsilo FLACHBODEN inkl. Gestell
Pelletsilo FLACHBODEN inkl. Gestell
A.B.S. Flachbodensilo Pellet - Preisattraktive Vollraumlösung - mehr geht nicht
von A.B.S.
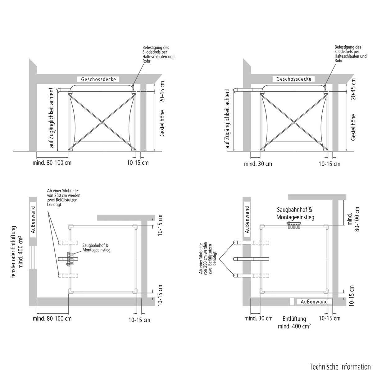
Mit dem würfelförmigen Flexilo® FLACHBODEN (Pat.-Nr. 10 2009 033 230) von A.B.S. werden zwischen 80 und 90% des Pelletlagerraums ausgenutzt. So lassen sich Holzpellets optimal und platzsparend in fast jeder Räumlichkeit lagern selbst bei geringen Raumhöhen.
Highlights des Pelletsilo
- Höchstes Füllvolumen: Bis zu 90% des Pelletlagerraums ausnutzbar
- Einfache und schnelle Montage
- Ablassstutzen für manuelle Handentnahme serienmäßig
- Sauganschlüsse, Montageeinstieg, Handentnahme und Füllleitung können an jeder Seite nach Ihrer Vorgabe angebracht werden
- Sonderabmessung für jeden Einsatzzweck
Lieferumfang Flexilo® FLACHBODEN HP 18 inkl. Gestell
- Silosack mit eingenähter Prallwand
- Verzinktes Stahlgestell als Stecksystem inkl. Montagematerial
- Passendes Befüllsystem (standardmäßig seitlich)
- Inkl. Entnahme: 5 Saugsonden, manuelle Umschalteinheit und Saugschläuche im Innern
- Haltekonstruktion für Silodeckel (Rohr muss bauseits gestellt werden)
- Montageanleitung